什么是布局图?
布局图是针对建筑物布置方案的一种简明的图解形式,根据不同的符号可以表示不同的建筑、设施、设备等的位置方位。布局图可以分为工厂平面布局图、车间平面布局图、家庭房屋布局图、网络布局图等等。
布局图一般比较复杂,有一般的布局图有三个要素,比例尺、方向、图例。而且会有很多的符号组成,有表示不同厚度的墙体的线段,有表示门向外开还是向内开的扇形符号,还有很多很形象的表示现实中物体的符号。

部分布局图示例
平面图可以展现空间的布置和安排,以下是一些常用的不同类型的布局图示例:
几条线条的包围加上一些特定的符号,就能够制作一个简单的布局图。
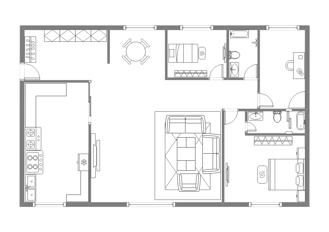
家居布局图
家居布局图用于细化出空间的某个详细的立面造型,一份优秀的家居布局图,应该包含墙体数据、门窗位置以及打开方向、家具位置以及摆放方向等。例如下面的家具布局图,可以清楚的看出各个房间的作用、位置以及室内的家具摆放。

网络布局图
网络布局图是反应网络中各实体间的结构关系,能使使用者了解网络的搭建,方便配置和检错。下图展示的是是常见的网络布局图。

仓库布局图
仓库布局图和家居布局图类似,都属于为实际空间进行布局规划。在仓库布局图中,一般会有不同区域,用不同的符号或颜色来表示。如下图,在这个仓库布局图中,采用不同的颜色代表不同的货架区域。

如何绘制布局图?
亿图图示是一个功能强大的专业绘图软件,无论是绘制何种布局图,它都可以帮助你轻松解决。下面是使用亿图图示绘制布局图的步骤。
第一步:选择布局图
在亿图图示官网下载亿图图示客户端,然后打开软件,选择“新建>工程>平面布置图>布局图”,然后双击平面布置图图标,或单击布局图模板,就可以开始绘图了。

第二步:添加/修改符号
无论是在空白幕布上绘制,还是套用布局图模板,都可以在左侧的符号库中,选择会用到的符号,直接拖拽到画布内对应的位置就可以了,绘制时是支持快速对齐功能的。

第三步:进行美化完善
绘制出基本的图形后,可以在右侧的面板填充颜色,选择主题样式。如果觉得手动美化太麻烦,在上方的功能区中有“一键美化功能”,顾名思义,一键就可以美化整个布局图。

第四步:保存/共享文件
亿图图示支持多种格式保存文件,比如可以导出为图片、PDF、Office、Html、SVG或Visio格式保存到本地。也可以保存在亿图图示的个人云文件中,还可以将文件以链接的形式共享给同事或朋友。当然,发布在导图社区中,也是一个不错的选择。
