文章 - 平面布置图

海量消防图模板符号,创作漂亮的消防图软件

在火灾,地震或其他危急情况时,一条紧急逃生的安全通道就显得格外重要。在建筑设计时都会考虑到这一点,如何让更多的人知道逃生路线呢?消防图就是将三维的立体建筑二维化,在平面上,用箭头标注出逃生路线,以达到协助逃生的目的。让我们一起用亿图图示绘制吧 ...

立面图怎么画?建筑立面图绘制步骤详解,新手必备

立面图是指在与房屋立面所平行的投影面上所做的图,通俗的来说就是我们从建筑物正对方向所能观察到的全部内容,包括了建筑的长、高、门、窗、层数以及各种装饰物等外貌特征。让我们用亿图图示来绘制立面图很简便,通过以下几个步骤的操作,就可轻松绘制出一幅简洁漂亮的立面图啦~ ...

布局图怎么画?零基础快速绘制布局图的软件

布局图是什么?布局图就是将产品形象化,图片化,比起文字描述,布局图以一种更为直观的形式向顾客表达自己的产品。在布局图里,包含着面积大小,坐位方向,格局设计等等。布局图的制作方法并不难,按照下列亿图图示的步骤,就可快速绘制出一幅专业又美观的布局图。 ...

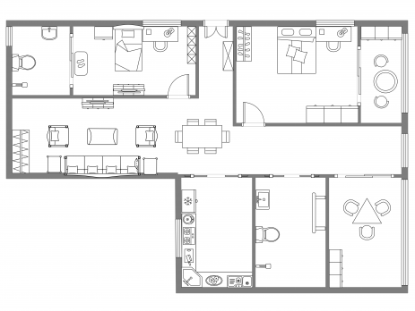
平面布置图

平面布置图在线制作工具,轻松画出房屋平面图

什么是平面布置图?平面布置图是一种常用图示,在一个平面上绘制各种图形来表示建筑物内部结构、布置的相对位置。平面布置图的三要素有比例尺、方向、图例和注记,根据布置对象分为总平面布置图、单体建筑平面布置图、多体建筑平面布置图、地下网络平面布置图、车间平面布置图等。 ...

平面布置图,彩平

室内设计也就这么回事,房子自己来设计!

买了新房第一件事是什么?当然是找室内设计装修公司,把自己的毛坯房装修成网上高大上的北欧风、新中式、地中海风、美式田园风等效果图的样子,装修一般流程是调研、签合同、定设计方案、选建材、开工进场、结构改造、贴砖、铺地板、家装监理、核算费用、收房、保修。 当然专业的还是要交给专业的去做,这里要说的是,在和设计师交涉的过程中或许设计师总get不到你想要的点,他给的平面布置方案你总不满意,在这方案不断修改...

亿图房屋设计图

零基础自学房屋设计,原来就这么简单

不少人喜欢自己设计房屋平面布置图,一般是用纸和笔就能够绘制出来,但是这样的设计效果尤为简陋,不能准确标注尺寸,也不能精准绘画出各个物品。市面上,能够设计平面布置图的软件很多,但界面操作及其复杂,适合专业的设计师使用。而零基础绘图经验的人,又该如何绘制专业的房屋设计图呢?不妨使用亿图图示来绘制。 学习房屋设计,选对工具很重要! 亿图图示是一款出色的国产多类型图形图表设计软件,能够轻松出绘制您想要的效...

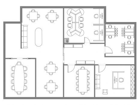
亿图政务大厅平面图

用软件轻松绘制行政服务大厅窗口分布平面图

行政服务是一种新兴的综合性行政服务体系。据资料记载,我国已有不同层级的综合行政服务机构3300多家,基本覆盖全国所有县市。具有行政审批职能的部门一般会在政务大厅设立窗口集中办公,此举将极大方便办事群众。如何做好行政服务中心办公大楼设计,如何制作政务大厅平面布置图,这是提高群众办事效率的重要因素之一。 一款专业的政务大厅平面布置图软件 亿图图示这款绘图软件,其内置丰富的绘图符号和例子,可以帮助使用者...

绘制平面布置图

零基础如何快速绘制平面布置图?

说到平面设计图,可能很多人第一反应就是需要专业的设计人员,或者建筑行业相关的人才能画出来,而且现在很多工具也是需要专门的学习之后才能使用。那么,作为一名普通人,如果想自己设计家居规划,或者绘制办公室布局相关的平面布置图,应该用什么软件比较好呢? 亿图图示专家作为一款多功能、简易化操作的绘图软件,可以将复杂的绘图过程简单画。即使是非专业人士,没有绘图功底的新手,也可以很快上手使用。今天,小编整理了关...

花园别墅平面图符号

精致的花园别墅平面图符号,助你轻松设计!

花园别墅一般是在郊区或风景区建造的园林住宅。 除“居住”这个住宅的基本功能以外,它更主要体现生活品质及享用特点的高级住所,也被叫做为独立的园林式居所。 溯其起源,并没有一个明确的时间起始点,我国古代也很早就出现了别墅,大的有帝王的行宫,将相的府邸,小的有富商巨贾地主乡绅的山庄、庄园。 但有一点毋庸置疑,别墅设计相对于其他户型来说是比较复杂的。 别墅花园设计有其特殊性,不与其它设计相同。在设计风格...