入门级绘制户型图的作图软件
户型图是什么?常见的户型图就是在印在房产宣传广告上的平面图,它将立体的房子转变成了二维的平面图,在这幅图中你可以清晰的了解到这个房子的面积,规格,布局以及承重墙等等,这些知识都会帮助你更好的了解这个房产。如何绘制一幅实用美观的户型图?首先,需要充分了解所绘房子的实际情况,用亿图按照事实绘制即可。 ...
户型图是什么?常见的户型图就是在印在房产宣传广告上的平面图,它将立体的房子转变成了二维的平面图,在这幅图中你可以清晰的了解到这个房子的面积,规格,布局以及承重墙等等,这些知识都会帮助你更好的了解这个房产。如何绘制一幅实用美观的户型图?首先,需要充分了解所绘房子的实际情况,用亿图按照事实绘制即可。 ...
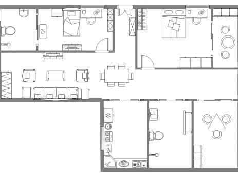
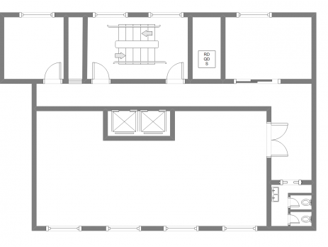
户型图是将立体三维的房子转变成了平面二维的平面图,在这户型图中可以清晰直观的了解到这个房子的面积,规格,朝向,布局以及承重墙等等,看懂这些知识都会更好的帮助我们了解这个房产。 ...
户型对于购房者来说十分的重要,所以作为专业的置业顾问不仅要会看还要懂得如何绘制户型图。先来了解一下什么是户型图:户型图是通过图片的形式来展示房屋结构的图形,即分别对每个独立的空间的功能、位置、大小进行详细描述的图型。跟着亿图图示下面的步骤就可以快速的绘制出一幅专业的户型图。 ...
我们从选择买房的时候开始就会接触到户型图,有些人并不注意户型的选择,但居住对人是极其重要的一个问题,直接决定了以后日常起居、用餐休闲等的舒适与否。无论是买房还是装修,户型图都是很基础却又很重要的一个环节!除了要会看户型图,有的人也想自己设计一下家居户型,这时候有些朋友就会问了,户型图难道不是只有专业设计师才能画出来吗?其实现在的户型图采取的都是非常简明的效果,要做出这种效果并不难,只要选择一款好用...
很多亿图的朋友问初学者应该怎么学习画户型图? 其实所有画图方式中,手工绘制是直接而简单的画法,但要画得好也不是很容易的。一张A4纸,准备好画笔等工具准确无误后用有色水笔、圆珠笔钩线确定,然后人工标注尺寸以及必备要素。一般学过建筑平面制图的人一上手就能画得比较标准,但画起来随意性比较大。手工绘制之后也需要复印多份,以备后面各种设计的使用。下面重点要讲的是电脑绘制户型图,电脑绘制的修改起来比较方便,也...